Casă ecologica din lemn, paie și lut

Locație: Vorarlberg, Austria
Concepție: 2018 - 2019
Realizare: 2020 - 2021

Casa a fost concepută pentru o familie de cinci persoane, conceptul principal fiind crearea unor spații comune generoase chiar dacă condiția de bază este limitarea la o anumită suprafță si volum. Această limitare fiind impusă de dorința proprietariilor de a avea pe viitor posibilitatea de a integra o altă construcție pe același teren.

Proiectul prevede posibilitatea de a construi două case pe teren, dar doar casa din dreapta este realizată în prima etapă.

Chiar dacă în prima etapă va fi construită doar casa din dreapta, s-a ținut cont de aspectul final de ansamblu.

Fațade

Secțiune: Zona comună de la etaj este deosebit de înaltă si este luminată natural din diferite direcții.

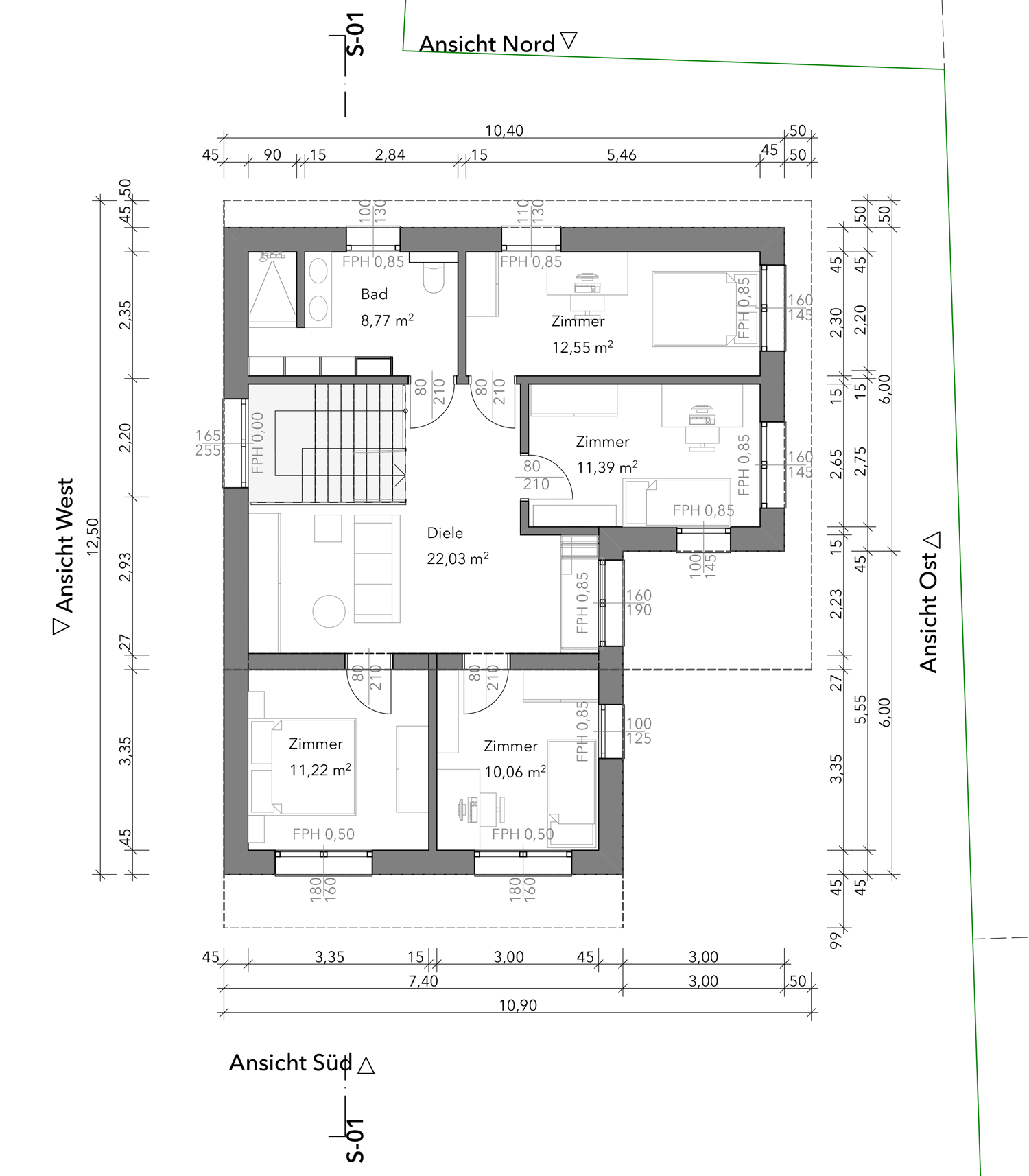
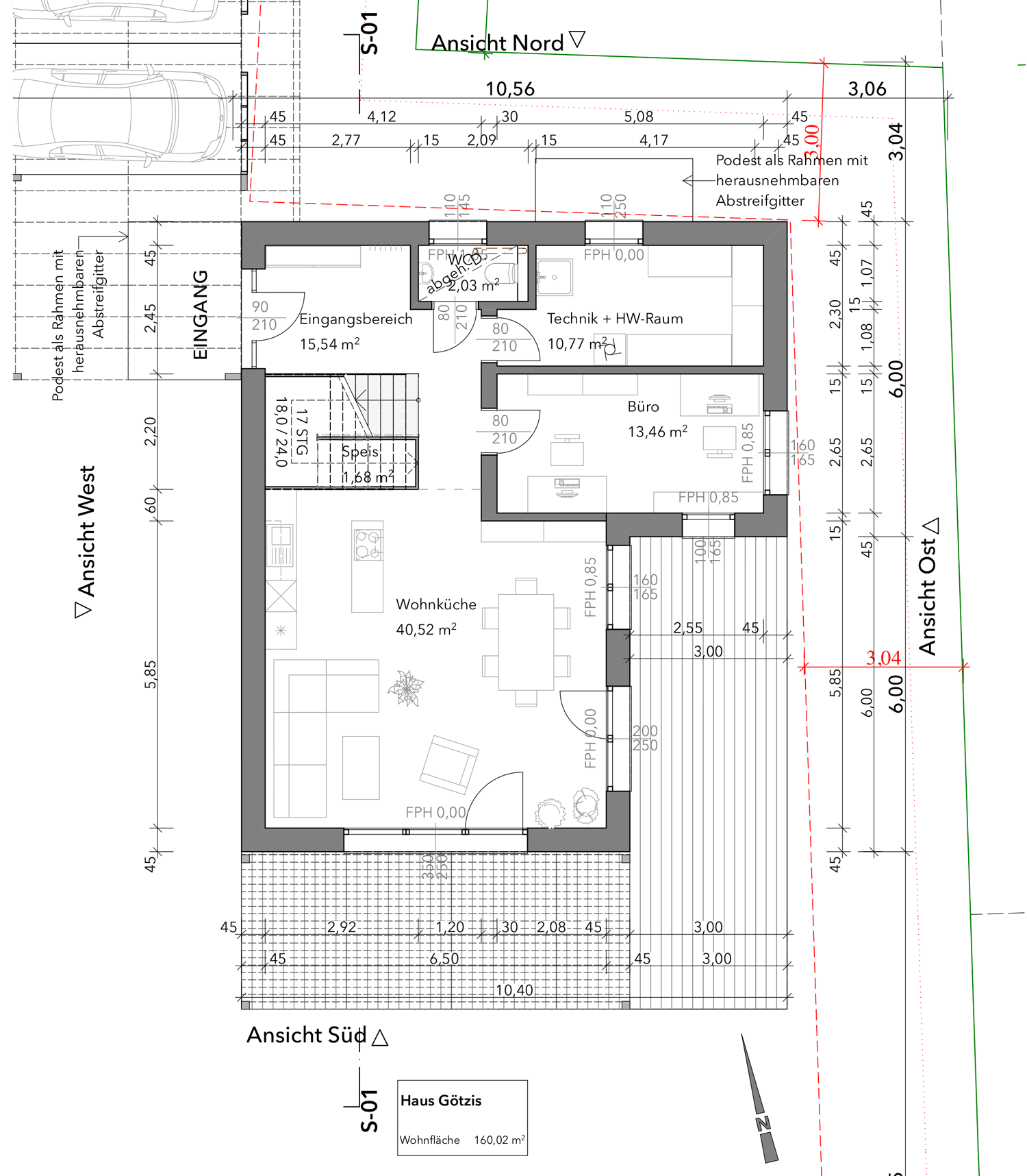
Parter: Living cu bucătărie deschisă, un birou de homeoffice, camera tehnică și toaleta. Scările funționează simultan ca spațiu de depozitare.

Etaj: o mare zonă comună pentru care poate prelua funcții diferite, mai ales zonă de joacă pentru copii. Patru camere și baie.

La construcția casei s-au folosit elemente prefabricate pentru asamblarea pereților, plafoanelor si acoperișului. Elementele au fost realizate într-o hală din estul Austriei fiind transportate în vest (Vorarlberg), unde au fost asamblate în câteva zile pe placa de bază din beton pregătită din timp. După montarea instalațiilor tehnice de încalzire/răcire, electrice, apă, etc. îmbinările dintre elemente au fost completate cu tencuială din lut, înainte să se tencuiasca întreaga casă în mai multe straturi de lut, fiecare strat fiind din ce în ce mai fin.

Firma LOPAS, care a livrat întreaga casă de la placa de baza în sus, deține deasemenea patentul conceptului construcției și al profilelor. Elementele sunt concepute din cadre din piloni de lemn, umplute cu fibre de paie (curățate si tratate), care sunt presate la o anumită densitate, acest proces având loc în hala de producție cu elementele culcate pe orizontal. Cadrele sunt apoi închise cu plăci din lemn și tencuite pe interior cu lut si pe exterior cu tencuială pe bază de var pe plăci de fibre de lemn. Toate tuburile pentru instalații sunt montate din timp.

Acest clip a fost difuzat la știrile locale în Vorarlberg și explică procesul construcției.
Traducere în engleză de mine (Marta Neic)  

Conceptul propune treptele ca un corp sculptural la centrul casei. Acesta functionează simultan pentru a urca la etaj și oferă totodată spații generoase de depozitare, ușor accesibile pe partea bucătăriei și la intrarea în casă.