Concurs pentru Centru de Cercetare LowEnergeticum Pinkafeld

Locație: Burgenland, Austria
Concepție: 2019
Realizare: concurs, locul 2

Acest proiect este o colaborare cu arhitectul Andi Breuss, cu sediul la Viena, care s-a ocupat de conceperea proiectului. L-am sprijinit în dezvoltarea conceptului precum și în elaborare și prezentare. Proiectul a luat locul 2 la concurs.

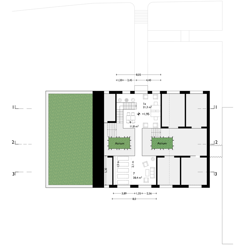
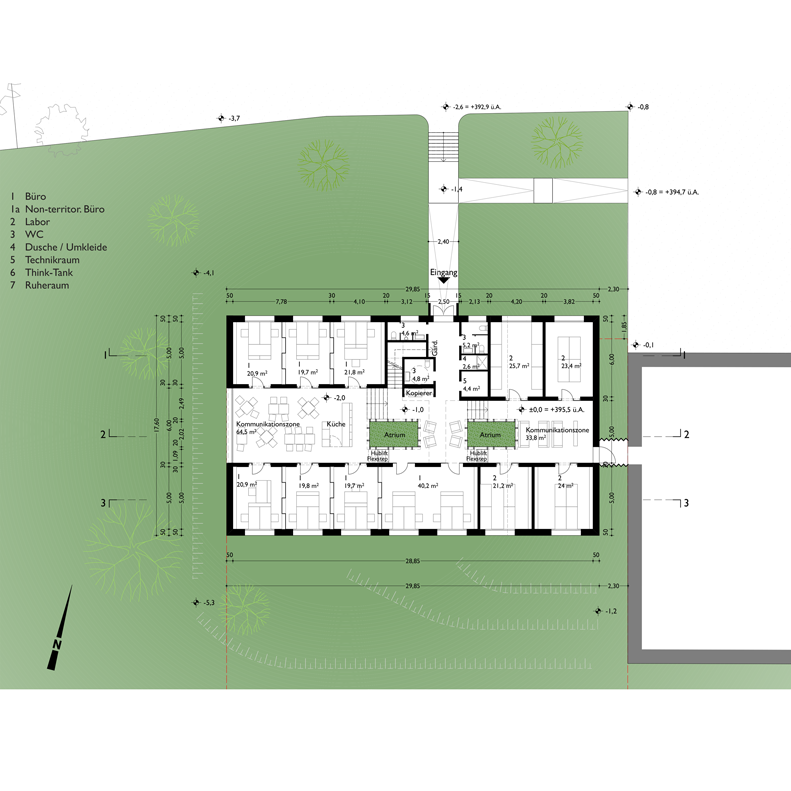
Neubau LowEnergeticum Pinkafeld este o clădire pentru Cetrul de Cercetare Eisenstadt  (Forschung Burgenland GmbH) proiectată într-un mod tehnic minimalist folosinduse un sistem monolitizat din lemn și lut, totodată asigurând un nivel de confort ridicat. 

LowErgetikum de la Universitatea de Științe Aplicate din Burgenland este menit să reprezinte o construcție simplă și naturală care evită CO2 dăunător climei atât în producție, cât și în exploatare.

Pentru realizarea acestui concept se folosește un sistem de construcție pe care Andi Breuss l-a dezvoltat într-un proiect de cercetare de-a lungul mai multor ani. Este un SISTEM PREFABRICAT DE MONOLITIZARE LEMN-LUT care necesită doar lemn, lut și fibre de in pentru construcția sa.

Sistemul compozit constă dintr-o construcție de cadru din lemn izolat, care este conectată la exterior și în interior cu straturi groase de lut, eficiente pentru depozitare. Aceste straturi de lut preiau toate funcțiile fizice de construcție. Materiale precum lemnul și argila creează spații naturale și prietenoase cu corpul. În cazul suprafețelor netratate, aerul din încăpere rămâne apoi complet lipsit de substanțe chimice și emisii. Acest lucru crește enorm satisfacția utilizatorilor, deoarece creați o climă în cameră care nu numai că miroase bine, dar este și confortabilă din punct de vedere haptic și atmosferic.

Materialele de construcție sintetice - cum ar fi materialele legate de ciment, barierele de vapori, foliile, panourile pe bază de lemn sau benzile adezive și spumele de construcție - pot fi complet eliminate.

Acest concept este continuat și pe placa de pardoseală, care este planificată ca o placă de lemn ventilată în spate pe fundații cu șuruburi.

Structurile de la podea până la acoperiș pot face față umidității și chiar o pot procesa pozitiv pentru climatul interior. Aceasta înseamnă că aerul rece și umed de sub panoul de podea poate fi folosit și pentru a regla aerul din cameră.

Clădirea este proiectată cu un singur etaj. Amenajarea tuturor camerelor pe un singur nivel este mai bună din punct de vedere comunicativ. Comunicarea dintre angajați este mai directă și toată lumea se află mereu în mijlocul vieții de zi cu zi de birou. O zonă de comunicație deschisă în mijloc este înconjurată de aripi de birou pe lateral. Această zonă socială cu o calitate spațială distinctivă oferă o mare calitate pentru mediile de lucru contemporane și orientate spre comunicare.

Link la pagina arhitectului Andi Breuss